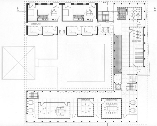
12. Diplomarbeit
"Predigerseminar in Berlin-Mitte -
Das
Domkandidatenstift von F.A. Stüler"
Grundriss 4.OG

weiter...
ARCHITEKTOUR
1.
Handel und Wandel
2.
Hochhaus am Alexanderplatz
3.
Kreativitätstraining mit CAD
4.
Außerirdischer Städtebau
5.
Blindenbibliothek
6.
Schwimmhalle in Berlin-Adlershof
7.
Schnitte - Hörarchiv
8.
Potsdam - Denkmalwerte und Denkmalpflege vor Ort
9.
Peruanische Botschaft in Berlin
10.
Stalinallee - "Die andere Moderne?"
11.
Wohnen im Alter